-
Главная
-
Каталог продукции
-
Для гражданского строительства
-
Фундаменты
- Фундаменты составленные для стальных опор ВЛ 35-500 кВ
Фундаменты составленные для стальных опор ВЛ 35-500 кВ
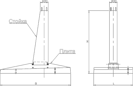
Данные изделия предназначены для унифицированных опор ВЛ 35-500 кВ.
Фундаменты представляют собой составные конструкции, собираемые из раздельно изготавливаемых железобетонных стоек и плит. На месте строительства стойки и плиты соединяются с помощью двух горизонтальных шпонок, которые устанавливаются в двух пазах, образуемых между уголками закладных деталей плиты и стойки.
|
Наименование |
Размеры, мм |
Расход материалов |
Составные элементы |
Масса, т |
|||||
|
B |
H |
L |
Бетон, м3 |
Закладные детали, кг |
Сталь, кг |
Плита |
Стойка |
||
|
Ф 1.5 x 1-2 |
1000 |
2700 |
1500 |
0,67 |
59,7 |
П 1.5x1 |
95,45 |
К 2.3-2 |
1,68 |
|
Ф 1.5 x 1.5-2 |
1500 |
0,79 |
П 1.5x1.5 |
102,3 |
1,98 |
||||
|
Ф 1.5 x 2.2-2 |
2200 |
0,96 |
П 1.5x2.2 |
121,8 |
2,40 |
||||
|
Ф2 x 1.6-А |
1600 |
3200 |
2000 |
1,31 |
100,9 |
П 2x1.6-А |
218,25 |
К 2.7-4 |
3,28 |
|
Ф2 x 2.1-2 |
2100 |
1,49 |
97,2 |
П 2 x 2.1 |
196,7 |
К 2.7-2 |
3,73 |
||
|
Ф2 x 2.1-4 |
102,3 |
201,8 |
К 2.7-4 |
||||||
|
Ф2 x 2.3-А |
2300 |
1,61 |
152,3 |
П 2x2.3-А |
295,5 |
К 2.7-4А |
4,03 |
||
|
Ф2 x 2.8-2 |
2800 |
1,70 |
97,2 |
П 2 x 2.8 |
218,6 |
К 2.7-2 |
4,25 |
||
|
Ф2 x 2.8-4 |
102,3 |
223,7 |
К 2.7-4 |
||||||
|
Ф2 x 3.0-А |
3000 |
1,86 |
227,3 |
П 2x3.0-А |
450,0 |
К 2.7-4Б |
4,65 |
||
|
Ф2 x 3.5-4 |
3500 |
2,02 |
210,2 |
П 2 x 3.5 |
365,6 |
К 2.7-4А |
5,05 |
||
|
Ф2 x 3.6-А |
3600 |
2,08 |
227,3 |
П 2x3.6-А |
526,3 |
К 2.7-4Б |
5,20 |
||

